2 houses with private pool 20km from Pisa, Lucca and 30 from the sea | House in Toscana

6 Bedroom House in Buti, Toscana
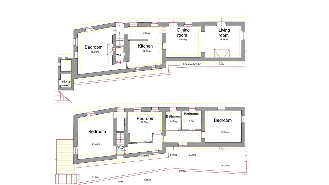
The property lies in a beautiful area of the Tuscany, surrounded by olive grove hills and green thick woods of pine trees; near to the most important art city of Italy (Florence, Voters, San Gimignano, Pisa, Lucca) and to the Versilia coast. The position and the altitude of about 300m on the sea level, guarantee a mild and agreeable climate in every season. It lies in a panoramic location around 1,5 kms from the village of Buti. It is a quiet location that provides a lot of privacy to the guests. From the large terrace (equipped with table and chairs to eat outside) and the pool area you can enjoy the nice views on the surrounding hills. The pool (for your private use) is 14 meters long and 5,5 large, the depth is 1,5 meters. On the property there are 2 houses (only rented together) for a total of 6 bed rooms and 14 sleeps (max 13 adults or 12 adults and 2 children). The big house has 4 bedrooms / 9 sleeps while the other one has 2 bedrooms and 5 sleeping places. The houses have been restored with a special attention for the original materials (terracotta, wood, stone…) and furnished with furniture of the Tuscany tradition. The big house has on the ground floor a kitchen, living / dining room, a double bedroom and a toilet. On the first floor there are 3 bedrooms and 2 bathrooms. It has in total 9 bed places (max 8 adults or 7 adults and 2 children). The small house has on the ground floor a kitchen, living/dining room, bathroom with shower and toilet. On the upper floor there is a bedroom with 2 single beds, a bedroom with double and single bed, a toilet. It is also possible to have a cot and high chair.
In and around Buti there are all the necessary shops and different restaurants/pizzeria/bars. Minimarket and baker are available in the central square (piazza Garibaldi), on monday morning it's also the market place. Supermarket available at 5 kms.There is a home restaurant at 550 meters from the property, they do also food delivery and it's possible to organize with the a cooking lessons. Further adviced restaurants/pizzeria's: Al vecchio molino, Le mangiatoie da Tormento, Trattoria Pacci, La Grotta, I maggi. Tennis fields available at 7 kms.
Access road:
Please note that the road from Buti to the house (in total 1,5 km) has 500 meters of steep road with 3 hairpin turns and 900 meters of gravel road. So we don't suggest to come with sport cars or caravans. Except Ferrari and other similar sports cars, no problem to ride up with other cars. The road is one lane for 700 meters and narrower for the last 200 meters. If you cross another car, one of those must return to the first available space. The road is used by the owners / guests of 5 houses, so it is a road with little traffic. The driver must have a minimum of familiarity with the car maneuvers.
Dogs:
Dogs are welcome, the tenant has to check that the furniture is not damaged, remove the droppings and prevent them from digging holes or enter in the pool. Additional charge: 25 euro for each dogs. If you want to bring more the 2 dogs enquiry before booking in every case.
BIG HOUSE:
Ground floor: kitchen, dining/living room, 1 bedroom with 2 single beds and a toilet.
First floor: 3 bedrooms, 2 bathrooms.
SMALL HOUSE:
Ground floor: kitchen, dining/living room, bathroom.
First floor: 2 bedrooms, 1 toilet.
OUTDOOR FACILITIES (all for your private use):
Fenced garden & Parking places
Garden chairs, sun loungers and sun umbrellas
Barbecue
Swimming pool (14x5,5, depth: 1,5m).
The 2 houses, garden and pool are all for private use of the tenant.
The pool is open from half May to end October.
Checking in all at the same time NOT required for this property.
The rental prices include:
Electric power, water, gas (except heating)
Wi-fi internet connection
Additional charges to pay on spot:
Bed linen/bath-towels/pool towels (compulsory): €.12,00 per person
Final cleaning (compulsory) €.190,00
Local tax: 1 euro per person per night
Heating charges (5,5 euro/m3)
Dogs fee: 25 euro each per stay
Standard check-in is from 16 to 19:30. Late check-in 19:30-22:30 is also possible (in this case there is an extra charge of 35 euro).
2 houses with private pool 20km from Pisa, Lucca and 30 from the sea is located in Buti. 2 houses with private pool 20km from Pisa, Lucca and 30 from the sea provides accommodation, featuring Internet, Pet Friendly, Security/Safety, among other amenities. This House features Internet, Pet Friendly, Security/Safety, to make your stay a comfortable one.
2 houses with private pool 20km from Pisa, Lucca and 30 from the sea has 6 Bedrooms , 4 Bathrooms, and max occupancy of 14 people. The minimum rental for this property is 1 nights, but this can change depending on the season you plan on staying. Previous guests have given good rated it, and VRBO labeled it a top-rated House because of the excellent services rendered by the owner or manager of this House, and has consistently provided great experiences for their guests. Most families or guests that use it recommend it to their friends and some of them are repeat guests. House has a friendly neighborhood, and the Buti has interesting places to visit. If you want to learn more about the House in Buti, such as places to visit and things to do nearby, you can check below to learn more.
Amenities
Facility Overview
-
Heating
-
Shower
-
Hair dryer
-
Towels provided
-
Toilet paper
-
4 bathrooms
-
Bidet
-
Bed sheets provided
-
6 bedrooms
-
Laundry facilities
-
Washing machine
-
Welcoming dogs only
-
2 total (up to 55 lbs per pet)
-
Pet friendly
-
Gravel flooring in public areas
-
Smoke-free property
-
If you have requests for specific accessibility needs, please contact the property using the information on the reservation confirmation received after booking.
-
Unit size: 2691 sq ft (250 sq m)
-
French
-
English
-
Italian
-
Dutch
-
Highchair
-
Local meal delivery service
-
WiFi available
-
Garden
-
Carbon monoxide detector installed (host has indicated there is a carbon monoxide detector on the property)
-
No smoke detector (host has indicated there is no smoke detector on the property)
-
Pool
Policies
Extra-person charges may apply and vary depending on property policy government-issued photo identification and a credit card, debit card, or cash deposit may be required at check-in for incidental charges host has indicated there is a carbon monoxide detector on the property host has indicated there is no smoke detector on the property onsite parties or group events are strictly prohibited property registration number it050002b5q2g44q93 special requests are subject to availability upon check-in and may incur additional charges; special requests cannot be guaranteed this property is managed through our partner, vrbo. you will receive an email from vrbo with a link to a vrbo account, where you can change or cancel your reservation